Leave a Message

Thank you for your message. We will be in touch with you shortly.

Browse Properties

Property Description

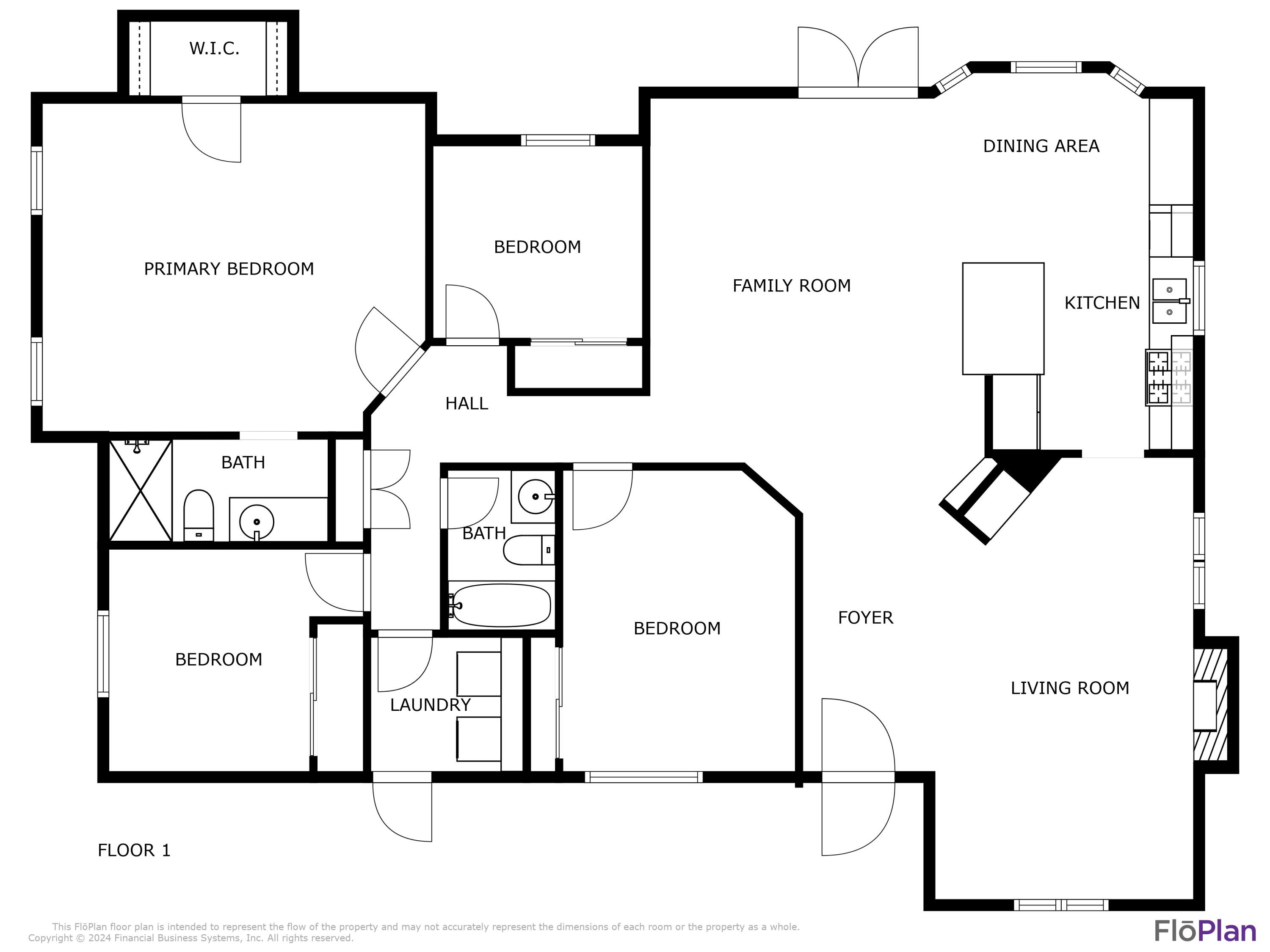
For Sale located in a SW Porterville neighborhood, is a 4 Bedroom, 2 Bath home with a Swimming Pool and RV Parking! Home has a fully front landscaped yard, showing beautiful curb appeal. As you step inside, you're greeted by an open entrance to Living Room and Family room, perfect for relaxing or entertaining guests. The open floor plan seamlessly connects the living room to the dining area and kitchen, creating a warm and inviting atmosphere. The kitchen is simple and functional with ample storage space. The primary bedroom is a serene retreat, complete with a bathroom and a walk-in closet. Three additional bedrooms provide plenty of space for family, guests or a home office. Stepping outside to your backyard is a swimming pool, storage shed and a playhouse for the tots. One great features of this property are the large RV parking at the home's westside and a Swimming pool that has security fencing for added safety. New HVAC installed in 2022'. Don't miss this opportunity to own this beautiful home

Overview

Property Status
Sold
Lot Size
7,000 Sq.Ft.
MLS ID
230091
Property Type
Residential
Year Built
2001

Features & Amenities

Total Area
1,670 Sq.Ft.
View Description
Neighborhood
Stories
1
Garage Spaces
2.0
Water Source
Public
Utilites
Cable Connected, Electricity Connected, Natural Gas Connected, Sewer Connected, Water Connected
Pool
Gunite, Waterfall
Roof
Tile
Lot Features
Fencing, No Landscaping, Patio Home, Sprinklers In Front
Parking
Attached, Concrete, Garage Door Opener, Garage Faces Front, RV Access/Parking
Heat Type
Central, Fireplace(s)
Air Conditioning
Ceiling Fan(s), Central Air
Laundry Room
Laundry Room
Fireplace
Living Room, Zero Clearance
Other Interior Features
Ceiling Fan(s), Entrance Foyer, Kitchen Island, Kitchen Open to Family Room, Tile Counters, Walk-In Closet(s)
Sewer
Public Sewer
Substructure
Slab
Security Features
Carbon Monoxide Detector(s)
Sales Price
$390,000

Downloads

1636 River Springs Avenue

Schedule a Tour

We would love to help you see this beautiful home! As a full-service brokerage, we can help you tour. Please submit an offer, and answer questions about the buying process.

Thank you

for your interest in 1636 River Springs Avenue, Porterville, CA 93257

1636 River Springs Avenue
Navigate

I'm Interested In

1636 River Springs Avenue

or
  • CallAbbigail Jularbal

    License #02218279

    (559) 697-7254
  • Featured Properties

    • 41652 Yokohl Valley Drive, A For Sale

      $574,850

      41652 Yokohl Valley Drive, A, Springville, CA 93265

      • 2 Beds
      • 1 Bath
      • 1,088 Sq.Ft.
    • 2230 S Velie Street For Sale

      $430,000

      2230 S Velie Street, Visalia, CA 93292

      • 3 Beds
      • 3 Baths
      • 2,099 Sq.Ft.
    • 2611 W Theta Avenue W Pending

      $370,000

      2611 W Theta Avenue W, Porterville, CA 93257

      • 3 Beds
      • 2 Baths
      • 1,599 Sq.Ft.
    • 2165 E Richard Avenue Pending

      $335,000

      2165 E Richard Avenue, Porterville, CA 93257

      • 4 Beds
      • 2 Baths
      • 1,250 Sq.Ft.
    View All

    Get a Fair Cash Offer for Your Home

    Skip the stress of showings, repairs, and waiting. Receive a quick, no-obligation cash offer from a trusted local team that puts your needs first.

    Learn More

    Follow Us On Instagram